
Our multi-room trailers are specifically designed to provide comfortable mobile housing for on-site employees and field personnel.
Get a Quote
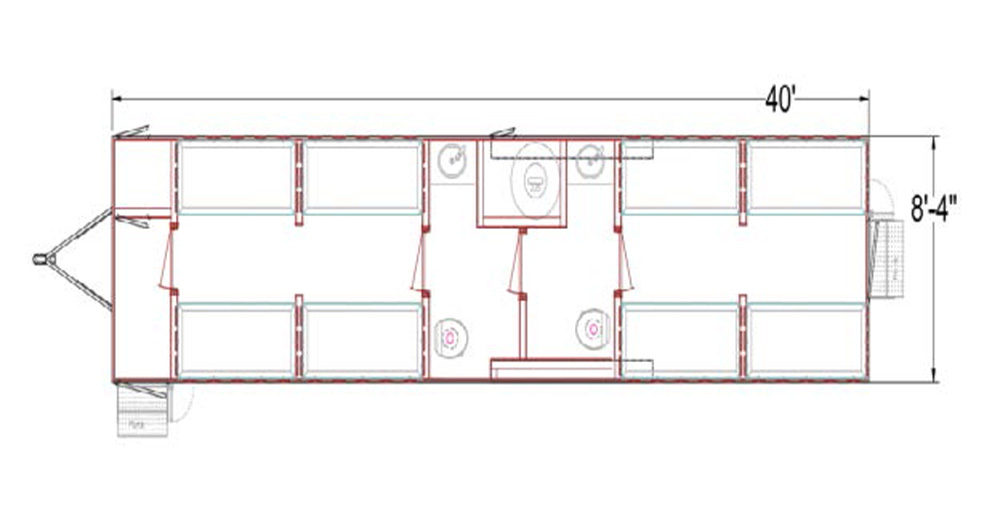
Our trailers are self-contained and are the perfect solution for workforce housing. Accommodations range from shared rooms to trailers with private entrances, private bathrooms, and private sleeping area.
Our goal is to ensure comfortable on-site housing for employees, students, and laborers while reducing employers' housing cost.
Photos are a representation. Actual mobile home/trailer may vary.
Construction – Environmentally safe and COVID-19 disinfected after each use.
All units are no smoking.
Pet friendly (additional cost may apply).