
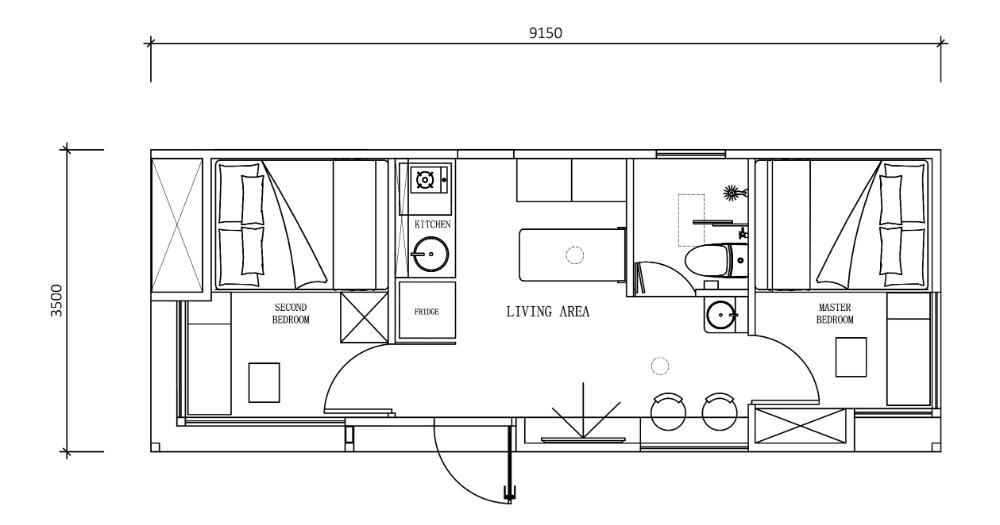
Ultra-Modern, Tiny Mobile Homes create a new experience in mobile housing! The Homes arrive fully furnished including Smart features, with an optional solar package for “off grid” applications for temporary or long-term mobile housing solutions.
The simplicity yet boldness of this design creates a stunning living environment not typically found in mobile or tiny home residences.
Get a Quote
For more information, connect with our team through our contact page.









Photos are a representation. Actual mobile home/trailer may vary.
Construction – Environmentally safe and COVID-19 disinfected after each use.
All units are no smoking.
Pet friendly (additional cost may apply).